109 Monmouth Ave | Wayne Twp.

$759,000 | 3 Beds | 3 Baths (3 Full)

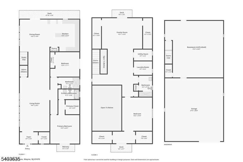
Welcome home to this newly constructed 3-bedroom, 3-bathroom Colonial nestled on a wooded lot in the heart of Wayne, where modern design meets everyday comfort. Step into the inviting entry foyer that opens to a bright, open main living space. The sunlit living and dining room combination features soaring ceilings, skylights, and expansive windows, creating an ideal setting for daily living and entertaining. The dining area flows seamlessly into the beautifully designed kitchen with custom cabinetry, quartz countertops, a center island, and brand-new appliances perfect for gathering and making memories. Down the hall, the first floor primary bedroom offers a peaceful retreat complete with walk in closet, full bathroom and access to the private balcony. A second bedroom and full bathroom complete the main level. Retreat upstairs to discover a spacious family room, ideal for relaxing, hosting movie nights or entertaining. Sliding glass doors lead out to the balcony. A generously sized bedroom, full bathroom, and laundry room complete the level. The walk-out ground level provides the opportunity for exceptional bonus space, perfect for a den, home office, gym, or hobby room. Sliding glass doors from the kitchen lead to a rear deck, ideal for outdoor entertaining, grilling, or al fresco dining surrounded by nature. A 1-car attached garage completes this thoughtfully designed new construction home, offering space, style, and comfort indoors and out. GSMLS 4003238

Directions to property: Newark Pompton Turnpike to Ryerson Avenue to Monmouth Avenue. Lender may require flood insurance.

MLS Listing ID: 
GSMLS 4003238
Listing Status
Status of the Listing.
Listing Status: 
Active
Listing Status (Local): 
Active
Listing Status Accepting Offers: 
1
Community Information
Elementary: 
RYERSON
Middle: 
G. WASHING
High: 
WAYNE VALL
Building Details
Details about the building on a property.
Architectural Style: 
Colonial
Year Built: 
2022
New Construction: 
0
Basement: 
Full, Walkout
Interior: 
High Ceilings, Skylight
Fireplaces: 
No
Construction
Roof: 
Asphalt Shingle
Exterior: 
Stucco
Exterior Features: 
Deck
Energy Information: 
Electric, Gas-Natural
Porch: 
No
Deck: 
Yes
Room Details
Details about the rooms in the building.
Total Rooms: 
7
Total Bedrooms: 
3
Total Bathrooms: 
3
Total Full-Bathrooms: 
3
Total Half-Bathrooms: 
0
Master Bathroom 
Level: 
First
Utilities
Information about utilities available on the property.
Heating System: 
Forced Hot Air
Heating System Fuel: 
Electric
Cooling System: 
4+ Units, Ductless Split AC
Water Source: 
Public Water
Sewer: 
Public Sewer
Lot/Land Details
Details about the lots and land features included on the property.
Acres: 
0.23
Lot Size (Dimensions): 
.229 AC
Waterfront: 
0
Lot Features
Driveway: 
1 Car Width, Driveway-Exclusive
Parking Type: 
1 Car Width, Driveway-Exclusive
Total Parking Spaces: 
4
Garage: 
Attached Garage
Pool: 
No
Fence: 
No
Public Record
Parcel Number: 
2514-00859-0000-00006-0000-
Lot Number: 
6
Annual Tax: 
$202.00
Listing Dates
Dates involved in the transaction.
Listing Entry Date/Time: 
1/2/2026
Contract Details
Details about the listing contract.
Possession: 
30-60
Listing Participants
Participants (agents, offices, etc.) in the transaction.
Listing Office Name: 
HOWARD HANNA RAND REALTY