245 Wiscasset Rd | Vernon Twp.
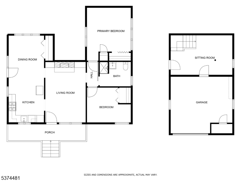
Opportunity awaits! If you're looking for a primary residence with separate building for office/den/studio, a full bath, & kitchenette, you can end your search right here. Located in a serene, private lake community, this inviting property mixes both charm & flexibility in a peaceful garden-filled setting. The 2-bedroom main house with full updated bath with radiant-heat floor, features a commodious kitchen with gas oven/stove, dishwasher, and front-facing window over sink, a formal dining room with french door that leads to the private patio with automatic, retractable awning, perfect for indoor/outdoor dining & entertaining. Upgrades include newer windows, an 8-year young roof & ductwork, making it easy to add central a/c for added comfort, a BRAND NEW septic, and a BRAND NEW UV light water remediation system. The adjacent separate building houses a garage, a spacious entry room, office/den/studio space, with its own full bath & kitchenette, ideal for remote work or creative pursuits. Surrounding both buildings are lush, gardened grounds with mature perennials, creating a tranquil oasis & curb appeal that stands out in this market. Highland Lakes is an elite, private lake community with a beautiful clubhouse w/kitchen, pool/game room, 5 lakes, 1 lagoon, 7 beaches w/lifeguards, swim lanes, multiple playgrounds, tennis courts, basketball courts, racquetball courts, softball fields, clubhouse, & more. Live the lake life year round or as a second home, only 50 miles from NYC! GSMLS 3994847
Directions to property: Rt 638 to Waconia to Wiscasset
 
	 
	 
	 
	 
	 
	 
	 
	 
	 
	 
	 
	 
	 
	 
	 
	 
	 
	 
	 
	 
	 
	 
	 
	 
	 
	 
	 
	 
	 
	 
	 
	 
	 
	 
	 
	 
	 
	 
	 
	